デザインプラン
2025.08.20
こんにちは!建設部の木原です。
花高の自社宅地で、新しい住まいのプランをつくりましたのでご紹介します。
ご要望
・書斎
・スタディスペース(家族で使える学習・ワーク用カウンター)
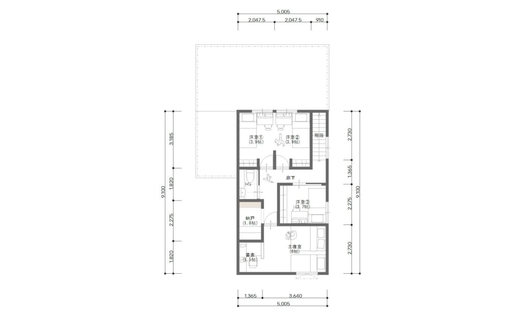
・子ども部屋3室



プランの見どころ
・雨に濡れない動線。駐車スペース側に向けて2階をオーバーハング。クルマから玄関まで屋根代わりになり、雨の日も濡れずにアクセスできます。
・街並みに開きつつ、庭はプライベートに 道路側に設けたアクセントの袖壁が目隠しとなり、LDK前にはのびのび過ごせるプライベート感のある庭を確保しました。
・1階は“家事とくつろぎ”の基地。LDKの一角には小上がりの畳コーナーとスタディカウンターを計画。読書や宿題、在宅ワークのサブにも使える多用途なコーナーです。 水まわり(洗面・脱衣・浴室)をキッチン近くにまとめ、隣接してW.I.Cも配置。洗う・干す・しまうが近くで完結します。
・2階は個室ゾーン+書斎。子ども部屋は3室をしっかり確保。加えて書斎、主寝室、納戸、2階トイレをレイアウトし、将来の使い分けにも対応できる計画です。




暮らしやすさと使い勝手、そして“ちょうど良いプライバシー”のバランスを意識してまとめました。
また新しいプランを考えたら、このブログでご紹介しますのでお楽しみに!


